проект дома
Basis
Каждый дом, как и его владелец, уникален, поэтому в современных тенденциях загородного строительства превалирует простота "со вкусом". Одноэтажный дом Basis смог воплотить в себе энергоэффективность, практичность и комфорт.


Видовые кадры
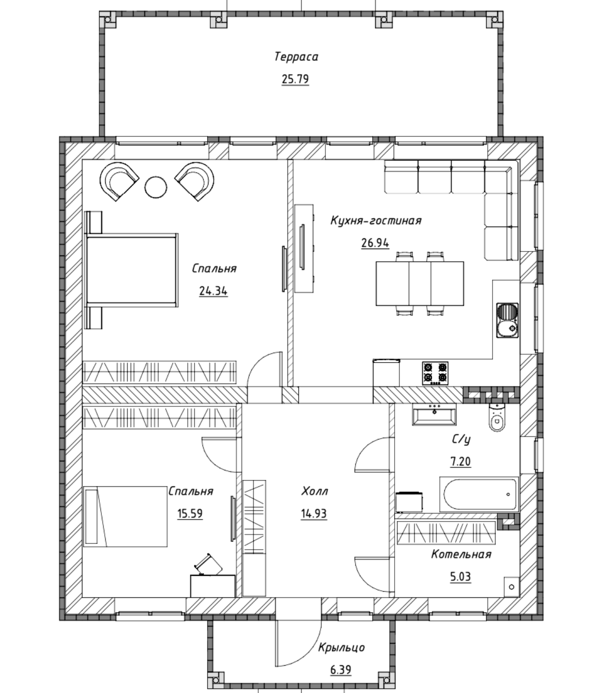
общая площадь дома - 103 м2
с пятном застройки 12*12
  • Фундамент — монолитная плита

  • Стены — керамоблок 380мм (возможно изменение кладочного плана на газобетонный блок 400мм)

  • Первый этаж — перекрытие по деревянным балкам

  • Холодный чердак

  • Кровельное покрытие — гибкая черепица (возможно исполнение в металлочерепице, цементно-песчаной черепице)

  • Отделка фасада — облицовка керамическим кирпичом (возможно исполнение в декоративной штукатурке)
Планировка
возможны создание и разработка
индивидуального проекта дома «под ключ»
*
Наши контакты

+7 925 586 20 70
+7 925 478 40 41
Адрес: деревня Жуковка, 54Б, 2 этаж
почта: d-exp@bk.ru
Made on
Tilda