проект дома
Harmony
Вечная классика загородного жилья - двухэтажный коттедж. Идеальный вариант для тех, кто хочет разграничить жилое пространство, любит простор и желает иметь дополнительную видовую площадку ("второй свет"). В таком случае Harmony - это идеальный выбор, сочетающий консервативный минимализм и актуальный стиль.
Видовые кадры
общая площадь дома - 163 м2
с пятном застройки мансардным этажом
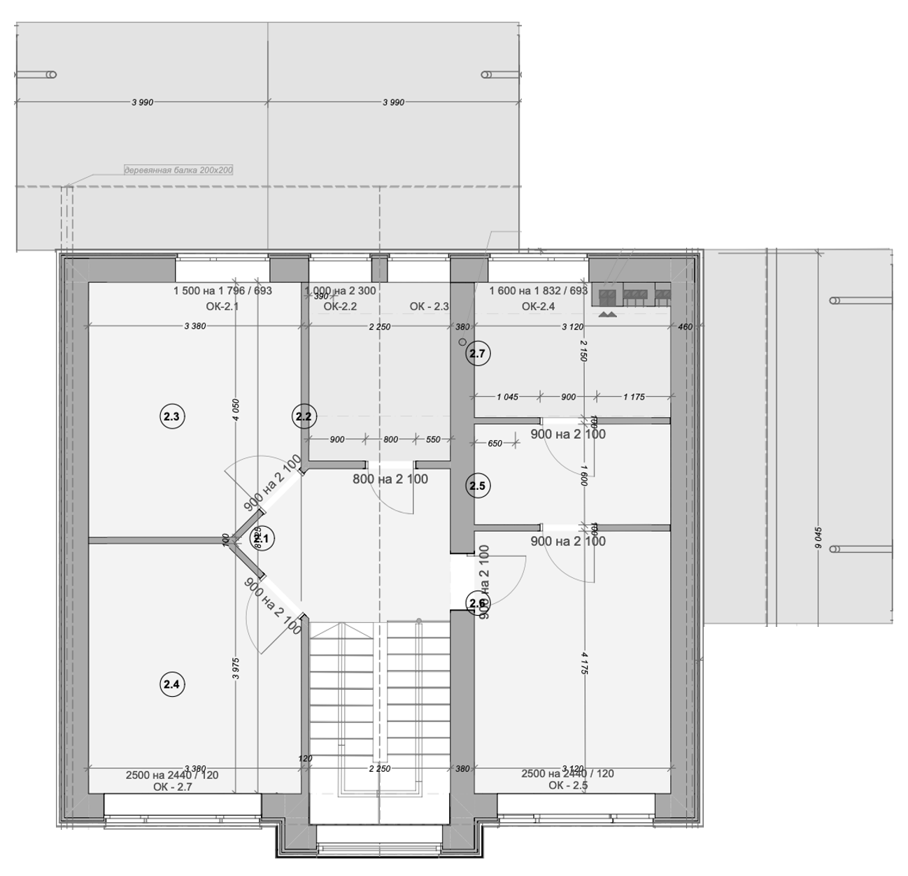
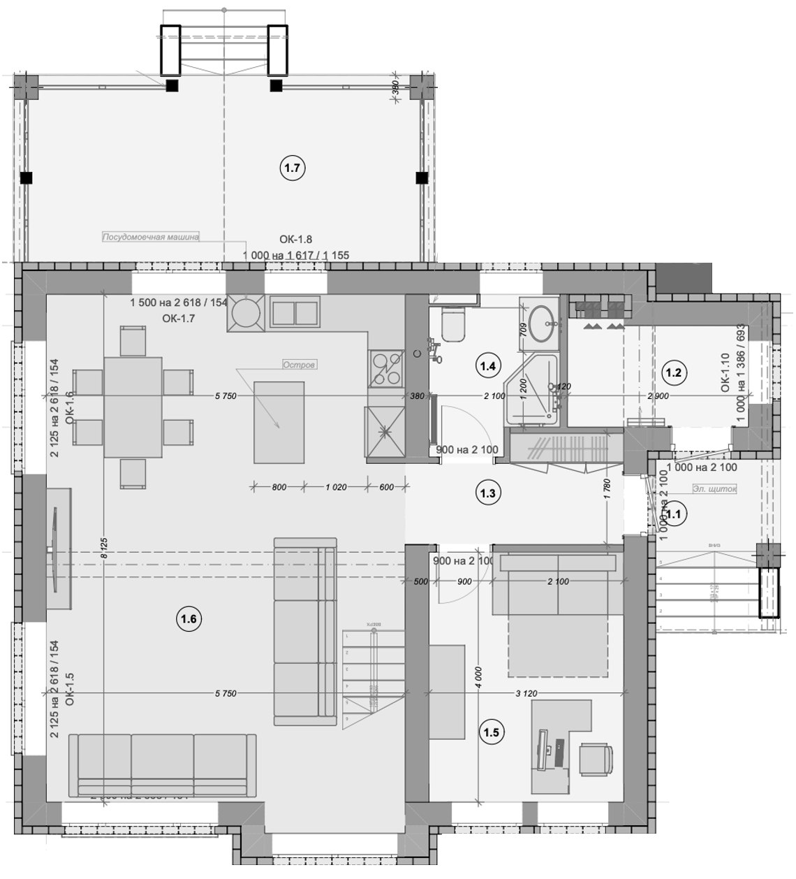
Планировка
1 этаж
2 этаж
возможны создание и разработка
индивидуального проекта дома «под ключ»
*

•Фундамент – монолитная плита

• Стены – керамоблок 380мм (возможно изменение кладочного плана на газобетонный блок 400мм)

• Первый этаж – монолитное перекрытие (возможно исполнение с плитами перекрытия)

• Перекрытие второго этажа – по деревянным лагам с утеплением

• Холодный чердак

• Кровельное покрытие – гибкая черепица (возможно исполнение в металлочерепице, цементно-песчаной черепице)

• Отделка фасада – облицовка керамическим кирпичом (возможно исполнение в декоративной штукатурке)
Наши контакты

+7 925 586 20 70
+7 925 478 40 41
Адрес: деревня Жуковка, 54Б, 2 этаж
почта: d-exp@bk.ru
Made on
Tilda