проект дома
Harmony 2.0
Двухэтажный коттедж в классическом стиле станет идеальным вариантом для большой и дружной семьи. Здесь каждый найдет для себя пространство для отдыха, работы, творчества или совместных семейных вечеров. Проект дома Harmony 2.0 - подходящий вариант для тех, кто ценит комфорт, качество и спокойствие.
Видовые кадры
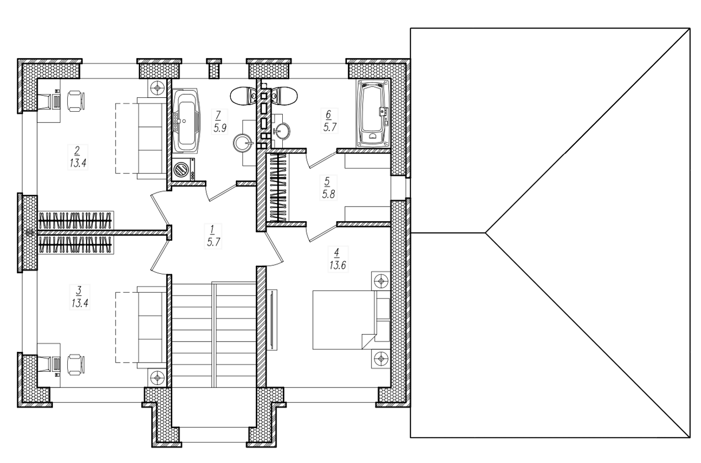
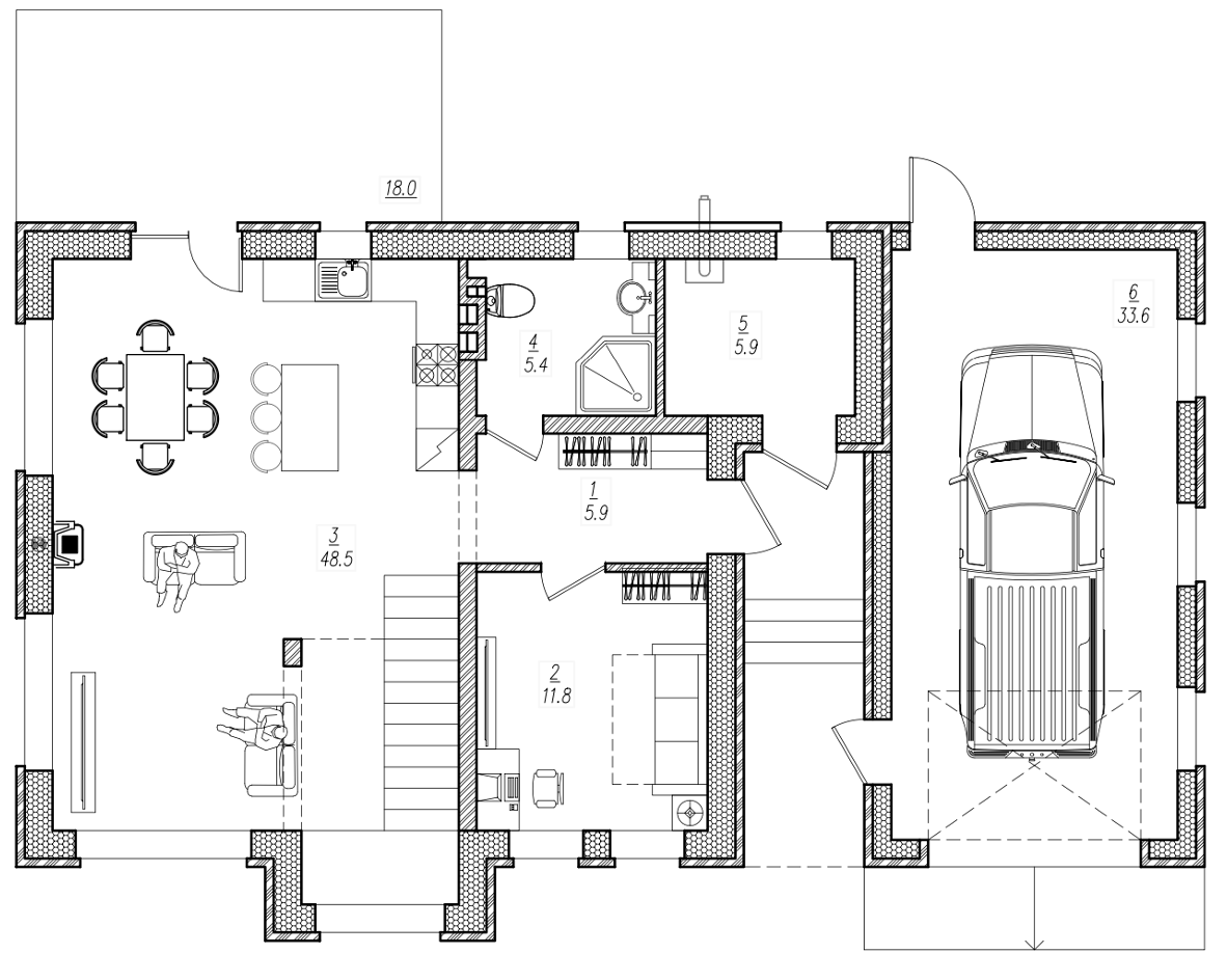
общая площадь дома - 173,6 м2 (в т.ч. гараж 33,6 м2)
с пятном застройки 10,2*13,1
Планировка
1 этаж
2 этаж
возможны создание и разработка
индивидуального проекта дома «под ключ»
*

•Фундамент – монолитная плита

• Стены – керамоблок 380мм (возможно изменение кладочного плана на газобетонный блок 400мм)

• Первый этаж – монолитное перекрытие (возможно исполнение с плитами перекрытия)

• Перекрытие второго этажа – по деревянным лагам с утеплением

• Холодный чердак

• Кровельное покрытие – гибкая черепица (возможно исполнение в металлочерепице, цементно-песчаной черепице)

• Отделка фасада – облицовка керамическим кирпичом (возможно исполнение в декоративной штукатурке)
Наши контакты

+7 925 586 20 70
+7 925 478 40 41
Адрес: деревня Жуковка, 54Б, 2 этаж
почта: d-exp@bk.ru
Made on
Tilda