проект дома
Horden
Двухэтажный дом в стиле ХайТек – это сочетание высоких технологий и комфорта. Дом напоминает недалекое будущее, и подойдет творческим людям, которые идут в ногу со временем. Особенности стиля отражены в простых и четких формах, сочетающих металл, бетон, дерево. Если вы любите современный стиль и удобную планировку, то данный вариант проекта – то, что вы искали.
Видовые кадры
общая площадь дома - 211 м2
с пятном застройки 9,7*15,1
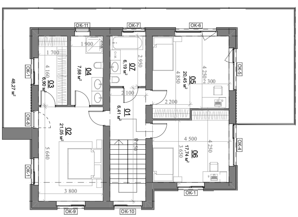
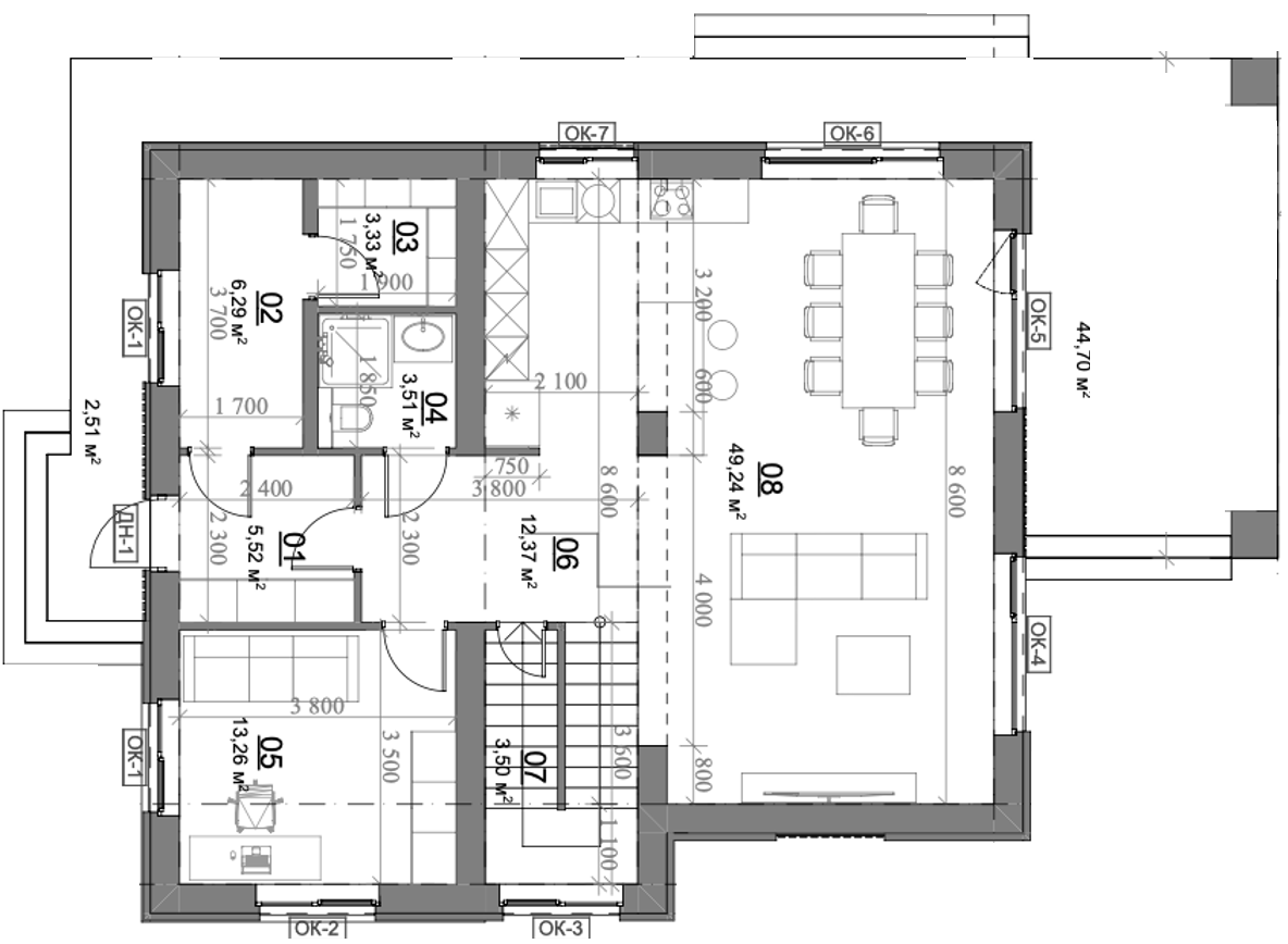
Планировка
1 этаж
2 этаж
возможны создание и разработка
индивидуального проекта дома «под ключ»
*

•Фундамент — монолитная плита

•Стены — газобетонный блок 400мм (возможно изменение кладочного плана на керамический блок или дополнительное утепление стен)

•Первый и второй этаж — монолитное перекрытие

•Кровельное покрытие – плоская, эксплуатируемая кровля с мембраной площадью 182 м2

•Отделка фасада — комбинированная декоративная штукатурка с элементами декора

Наши контакты

+7 925 586 20 70
+7 925 478 40 41
Адрес: деревня Жуковка, 54Б, 2 этаж
почта: d-exp@bk.ru
Made on
Tilda