проект дома
Rye
Одноэтажный дом Rye в стиле Барнхаус - это слияние минимализма, природы и комфорта. В проекте превалируют прямые линии и простые материалы, которые дарят ощущение свободы и очищения от всего лишнего, что есть в нашей жизни.



Видовые кадры
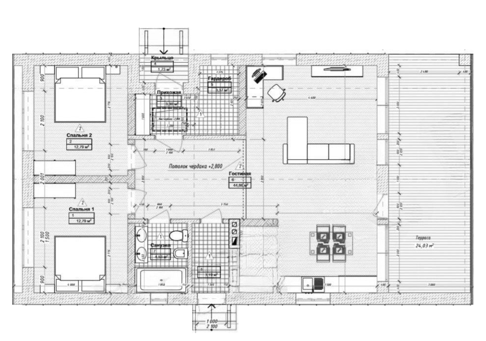
общая площадь дома - 100 м2
с пятном застройки 8,8*16,2
  • Фундамент – монолитная плита

  • Стены – газобетонный блок 400мм (возможно изменение кладочного плана на керамический блок)

  • Первый этаж – перекрытие частично деревянными лагами с утеплением

  • Гостиная — высокий потолок с утепленной стропильной системой (второй свет)

  • Уютная терраса под основной кровлей

  • Кровельное покрытие – фальц (возможно исполнение в металлочерепице, гибкой черепице, цементно-песчаной черепице)

  • Отделка фасада – комбинированная облицовка фальцем, планкен или декоративная штукатурка
Планировка
возможны создание и разработка
индивидуального проекта дома «под ключ»
*
Наши контакты

+7 925 586 20 70
+7 925 478 40 41
Адрес: деревня Жуковка, 54Б, 2 этаж
почта: d-exp@bk.ru
Made on
Tilda